Villa in Pinoso - Nieuw gebouw
Prijs €250.000
Pinoso - Alicante
- 1 Slaapkamers
 - 1 Badkamers
 - 26500m2
 
We bieden u graag deze mogelijkheid om een project af te ronden met alle vergunningen die al zijn aangevraagd, of om uw eigen ontwerp te maken.
Het perceel is 26.500 m² groot en zeer privé, beplant met 300 amandelbomen en biedt een prachtig uitzicht. Het is verhard en aangesloten op het elektriciteitsnet en riolering. Er is drinkwater beschikbaar in de straat en dit kan worden aangesloten (de gemeente heeft hiervoor al een keuring uitgevoerd).
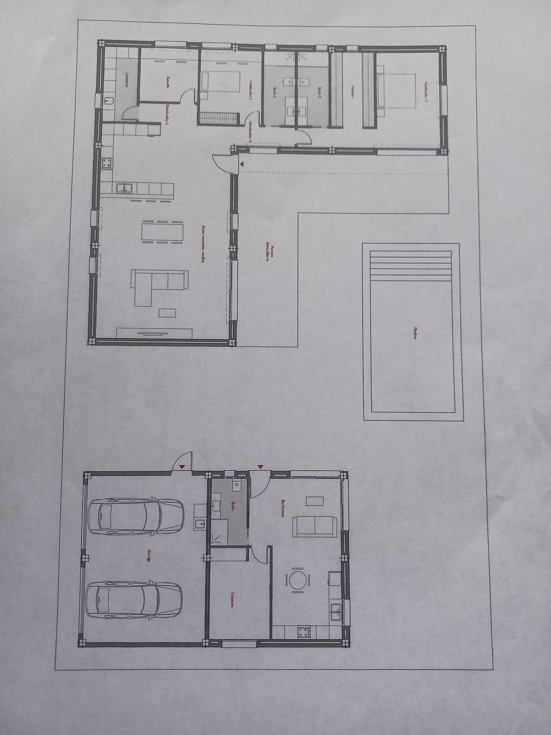
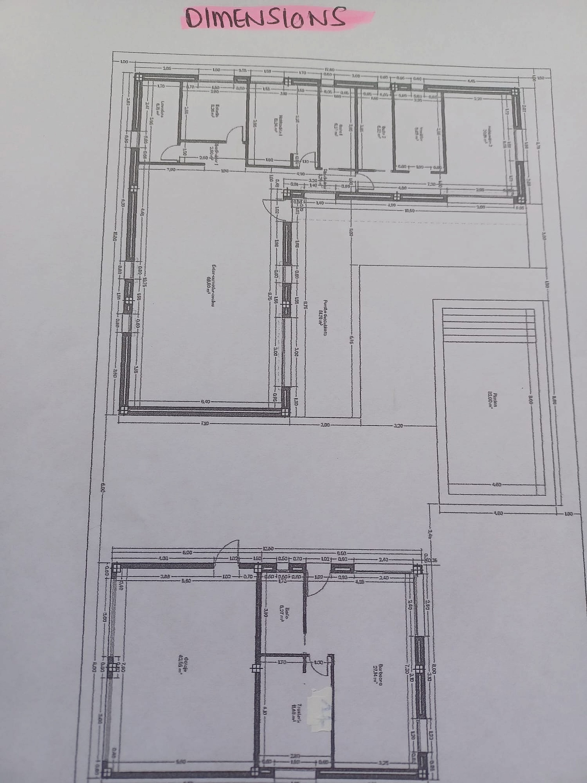
Het project betreft een woning van 160 m² in moderne stijl op één verdieping, een garage van 50 m² en een gastenverblijf van 50 m² (die al zijn voltooid).
Dit biedt de mogelijkheid om in het gastenverblijf te wonen terwijl het andere huis wordt gebouwd.
De architectenplannen zijn beschikbaar om het voorgestelde type woning te bekijken, hoewel dit nog kan worden gewijzigd. Met een perceeloppervlakte van 26.500 m² kunt u tot 2% bebouwen, wat neerkomt op 530 m² (en dat is alleen de oppervlakte). Als u kiest voor een huis met twee verdiepingen, kan dat oplopen tot het dubbele. Er is dus voldoende ruimte om een buitenkeuken/barbecue en toilet naast het zwembad te plaatsen, of zelfs een extra gebouw.
Het perceel is vlak en ligt op slechts een paar minuten lopen van het dorp, met een leuke bar die ook eten serveert, en op slechts 2 km van het populaire stadje Pinoso, met alle dagelijkse voorzieningen en diensten. Slechts 45 minuten van de luchthaven, de stad en de stranden van Alicante.
Het perceel kan desgewenst ook worden gesplitst om er twee aparte huizen van te maken.
Deze verkoop is met tegenzin van de eigenaren, die door veranderde omstandigheden het project niet meer willen afmaken. Het hoofdgebouw kan in ongeveer 6-8 maanden worden opgeleverd, aangezien alles klaar is om in te richten. Bovendien wil de oorspronkelijke bouwer het project graag voortzetten, of u kunt zelf beslissen.
Voor meer informatie over de exacte kosten voor de bouw van het tweede huis kunt u contact met ons opnemen. De kosten zullen ongeveer tussen de 250.000 en 270.000 euro bedragen.
- Referenties
 - PT3125
 - Verkoopstype
 - Nieuw gebouw
 - Type woning
 - Villa
 - Energie certificaat
 - In afwachting
 
Specificaties
- Zwembad
 - Nee
 
Oppervlaktes
- Opp. terrein
 - 26500 m2
 
Details
- Snel internet en telefoon
 - Netstroom
 - Leidingwater
 - Op loopafstand van de stad
 - Septic tank / beerput
 
